Structural Engineering.
These details below, could be sent over in a sketch format, with guidance from ourselves or from previously drawn up plans.
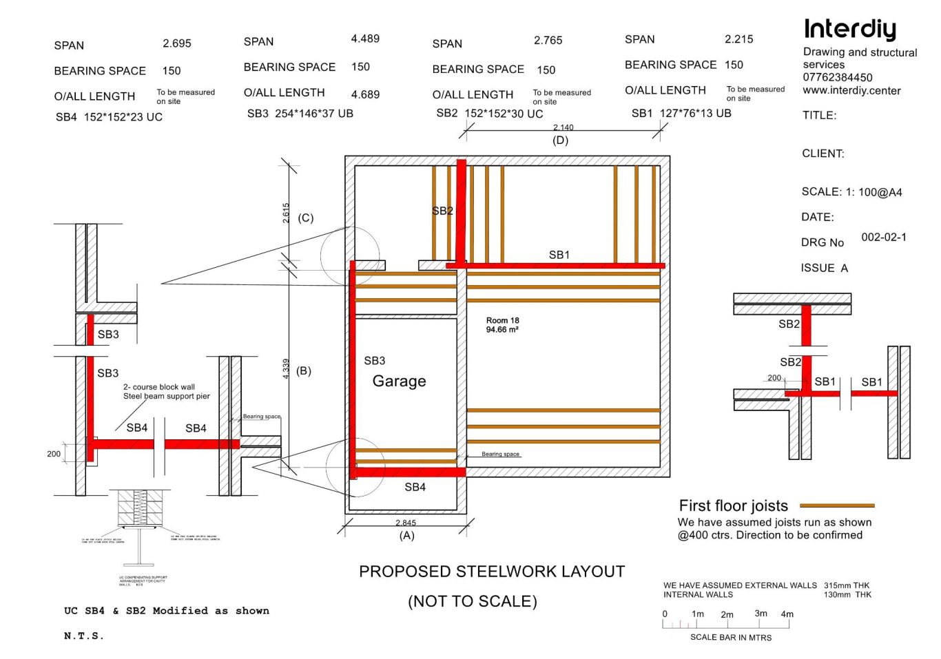
Client: Recently sent over drawings for INTERDIY, to design the steel work layout and sizing for a ground floor remodelling project, which was started this year, along with installation of steels for a second story extension over the garage for 2026 project.
The button below will display both the existing and proposed plans, allowing you to explore the intricate details of the 3D views. This interactive feature enhances your understanding of the layout and design changes, providing a comprehensive visual representation for your review.

Steelwork layout drawings.
This drawing, accompanied by the calculations, steel connection drawings, and pad stones, can be effectively presented in the context of 3D views, providing a comprehensive visual representation of the project. The integration of these elements allows for a clearer understanding of the structural components and their relationships, ensuring that all aspects are well-coordinated and easily interpretable in British English conventions.

